服務熱線:15195518515在線客服:1464856260
傳真號碼:0517-86801009
郵箱號碼:1464856260@qq.com
網 址:http://www.bxsmf.com
地 址:江蘇省金湖縣理士大道61號
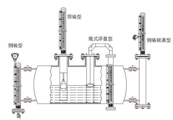
鹽酸液位計的頂裝式與側裝式區別及遠傳接線說明
關于頂裝與側裝安裝方式區別:
工業生產現場環境千差萬別,為了適應更多工況的需求,各類現場過程儀表的安裝也要根據現場條件的改變而靈活變動。鹽酸液位計作為現場測量液位儀表的一種,對于安裝的現場也有所要求。對于現場電流磁場的大小,安裝空間的大小都有所要求,觀測讀數與檢修位置都要有所考量。關于鹽酸液位計安裝方式一般可分為頂裝與側裝兩種,那么這兩種安裝方式安裝的鹽酸液位計在使用上也有所不同:
頂裝的鹽酸液位計必須要在安裝時保持垂直,連桿也不能彎曲。一般是在地下槽罐、或工作臺位于槽罐頂部的測量現場,需要選擇此種安裝方式,因為浮子要下行到容器內,所以安裝法蘭一般不得小于DN80,否則浮子直徑過大無法通過法蘭孔進入容器內。頂裝的鹽酸液位計使用時需要對指示器的磁翻板用所附磁鋼進行一次引導,從而使鹽酸液位計零位以上指示白色、零位以下指示紅色,通過無觸點報警開關使轉換起觸點按液位給定值動作從而達到液位控制的目的報警開關安裝在液位計所需控制位置,轉換器安裝在控制室內。它是利用磁藕合原理來進行工作的,至頂裝式此鹽酸液位計安裝完畢成功。
側裝的鹽酸液位計安裝于桶槽外側的延伸管上,桶槽內部的液位可以由翻板指示器清楚得知。側裝式磁翻板在旁路管外側亦可加裝磁性開關,信號輸出是由電氣接點來完成的,鹽酸液位計桶槽外側裝置延伸旁路管,由旁路管外加裝液位指示器,旁路管內要放有磁鐵的浮球,因為磁性的色片內裝著和浮球剛好相反的磁性。從而當浮球上升的時候會吸引磁性色片而翻動。磁性色片的顏色會由白色翻為紅色,以指示實際液面高度。

鹽酸液位計的顯示清晰、讀數直觀而且可以進行單體的全程測量,有著很好的實用性,不管是頂裝還是側裝,都擁有著良好的性能。
關于鹽酸液位計報警及遠傳信號接線說明:

一、系統構成及接線:
1、上、下限開關輸出
由具有自保持作用的干簧開關和轉換起組成,干簧開關和轉換器分別安裝于現場和控制室,由轉換器提供3對觸點開關。
2、電遠傳
由測量單元和變送單元兩部分組成。
二、側裝式鹽酸液位計是以磁浮子為測量元件,磁鋼驅動翻柱顯示,無需能源。適用于低溫到高溫、真空到高壓等各種環境。是石油、化工等工業部門的理想液位測量產品。
三、側裝式鹽酸液位計配置上下限開關輸出可實現遠距離報警、限位控制。配置變送器, 可實現液位的遠距離指示、檢測與控制。根據在容器上的安裝位置不同,提供側裝和頂裝兩種方式。根據作介質的不同,提供不銹鋼利ABS工程塑料兩種材質;其中ABS特別適用于酸、堿等腐蝕性介質。



|